• Bouwgrond te koop in Dessel
  • Bouwgrond te koop in Dessel
  • In optie

Zuidgerichte bouwgrond in centrum van Dessel

prijs op aanvraag

Ref. 6634781

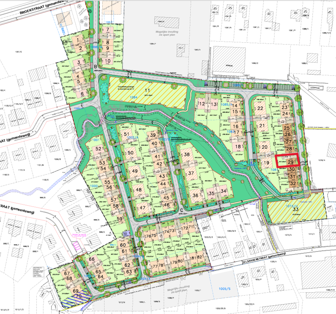
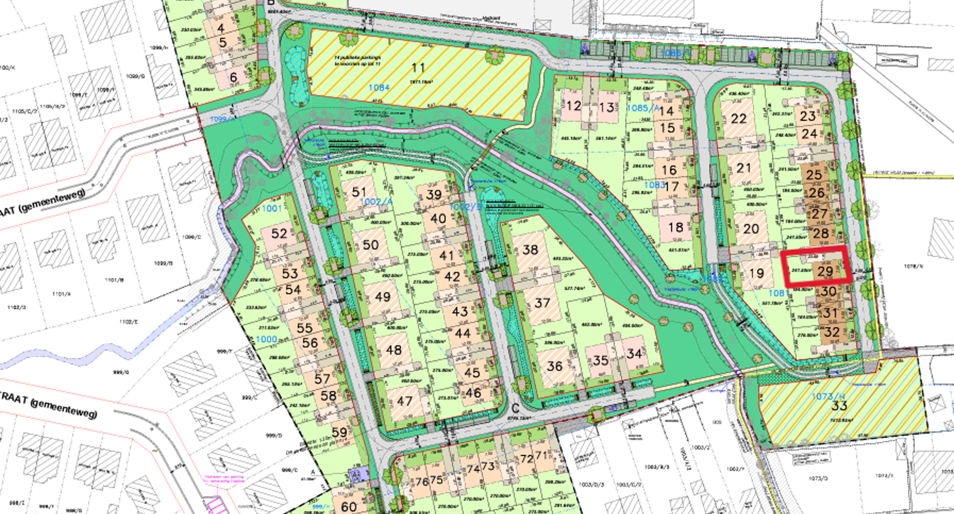
Skipper Lot 29, 2480 Dessel
  • 242 m² Grondoppervlakte
Dit zuidgerichte bouwperceel voor een halfopen bebouwing van 242 m² ligt in een rustige, doodlopende straat binnen een nieuwe verkaveling. Op slechts 200 meter bevinden zich 2 supermarkten, bakker, slager, gemeentehuis, lagere school en bushalte.

De bouwbreedte bedraagt 7.50 m en de bouwdiepte 10m.

Naast de woning mag nog een carport of garage van 3 m op 7 m gebouwd worden plus nog een extra berging van 2 m op 3 m.
  • Delen

Details

Financieel

Beschikbaarheid
Vanaf akte

Comfort

Aansluiting riolering
ja
Aansluiting water
ja

Oppervlaktes en afmetingen

Perceel opp.
242,00 m²
Terreindiepte
23,00 m

Technieken

Elektriciteit
ja

Interesse in deze eigendom?
Contacteer ons!

Grond ref. 6634781

Vanderhoydonck
Geert Vanderhoydonck
Gelieve uw voornaam in te vullen
Gelieve uw naam in te vullen
Gelieve uw e-mail in te vullen
Gelieve uw telefoon in te vullen
Gelieve uw uw bericht in te vullen
Gelieve akkoord te gaan met onze algemene voorwaarden
Niet gevonden wat u zocht?
Schrijf u in en mis geen enkele eigendom meer dat binnen uw zoekcriteria past
Meer aanbod van het type Grond Meer aanbod van het type Bouwgrond Meer aanbod van het type Bouwgrond In Dessel Te koop In Dessel
Vraag een schatting aanGratis schatting